T Square Coworking Space / Stateline No. 7 Architects
-
Architects: Stateline No. 7 Architects
- Area: 11500 ft²
- Year: 2019
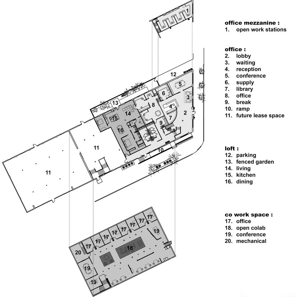
The project began when the owner | architect | developer envisioned co-locating a program of home and office into a live | work environment in an urban location. And inspired by requests for space in the building after the initial occupancy, the unused lower level was recently repurposed into a co-work office space, effectively making the entire building a “shared” workspace.
The historic warehouse structure was selected in an overlooked industrial neighborhood and is one of just a handful of “survivor” buildings from a former rail yard in what was a gritty, industrial edge of town that is presently situated on a prominent corner demarcating the entrance to downtown at a major arterial intersection.
Time and numerous misguided alterations had taken their toll, leaving the structure in a state of ill repair. However, the owner, architect, and developer appreciated the building’s historical significance and grasped its capacity to catalyze the neighborhood’s revitalization.
The history and cues of past industrial machining inspired a concept where the original building components are reinvigorated and exposed in their original character. In contrast, contemporary industrial warehouses and machinist elements are integrated in an honest expression.
A century of misguided building remodels was stripped away by vigorously removing layers of paint, uncovering original brickwork, and refinishing overlain floors into authentic distressed hardwood floors. The existing building was kept intact and repaired whenever possible.
The new construction is respectful of the existing structure, a nuanced dialogue between new and old. In some locations, the two are carefully delineated. In others, modern interventions take a back seat to historic character. Throughout the building, transparency and compatible finishes allow space to flow freely. The interior layout takes a cue from the expansive floor space that the original warehouse | factory allocated to varied uses. Original exposed brick walls, wooden floor assemblies, exposed roof structures, and polished concrete floors provide a rich backdrop for each space.
To maintain each area’s characteristic feel, the use of new materials was limited to a simple palette of translucent glazing or polycarbonate, metal, reclaimed second-use plywood and wood pallets, and painted gypsum.
Nothing is more sustainable than breathing new life into an existing resource and adaptive-reuse strategies have augmented this 1917 structure in preparation for another 100+ years of relevance. The project tells an important story about the role historic buildings can play in anchoring urban revitalization with sustainable principles – both in building programs and in building functions – and the story has been preserved in a documentary highlighting the strategies employed.
The project has helped catalyze redevelopment within the district with a series of investments since the building’s completion that has followed the project’s lead in respecting the existing fabric and expanding the mixed-use of the community.














