Ace Hotel Toronto / Shim-Sutcliffe Architects

HOTELS/ TORONTO, CANADA

Ace Hotel Toronto / Shim-Sutcliffe Architects - Interior Photography, Stairs, Arch, Handrail, Column, Beam

 The Ace Hotel brand is developed with the goal of creating places that feel simultaneously immersed in local culture, while also maintaining a global connection. A lot is guided by intuition and experimentation – foregoing formulas to create places for the community. Each property has its own soul and energy, while also evoking a universal ethos of empathy, creativity, curiosity, and of course, hospitality
Ace Hotel Toronto / Shim-Sutcliffe Architects - Exterior Photography, Brick, Facade, Handrail
Ace Hotel Toronto / Shim-Sutcliffe Architects - Exterior Photography, Windows, Facade

Shim Sutcliffe worked closely with Atelier Ace to design Ace Hotel Toronto, from conception to the realization of interior spaces. Before starting to design, we visited several Ace properties to immerse ourselves in the Ace brand experience. These properties were exemplary models of adaptive reuse, breathing new life into the buildings and their surrounding neighborhoods. They were also hubs that help both travelers and locals to feel at home.

Ace Hotel Toronto / Shim-Sutcliffe Architects - Interior PhotographyAce Hotel Toronto / Shim-Sutcliffe Architects - Interior Photography, Kitchen, Windows
Ace Hotel Toronto / Shim-Sutcliffe Architects - Image 23 of 29
Ace Hotel Toronto / Shim-Sutcliffe Architects - Image 27 of 29
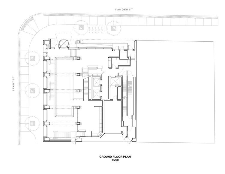
Interior elevations
 

For the brand’s first Canadian property, we wanted the building to feel particularly Canadian. Like the other Ace properties around the world, we hoped to create a welcoming civic space where life happens and memories are made. We also wanted to build time into the building so that instead of expressing newness, the building would feel as though it had always been there — like a noteworthy industrial building — with new layers added over time to facilitate its conversion into a hotel. And we wanted it to be a destination for both Torontonians and visitors.

Ace Hotel Toronto / Shim-Sutcliffe Architects - Interior Photography, Stairs, Handrail, Beam
Ace Hotel Toronto / Shim-Sutcliffe Architects - Interior Photography, Wood, Table, Handrail

As architects, we are very deliberate about our materials, which we select to elicit intuitive and sensory experiences. We chose each element with the intention of orchestrating a harmony that echoes the city itself and developing an environment that offers a fresh perspective, a richness of experiences, and a sensual spirit.

Ace Hotel Toronto / Shim-Sutcliffe Architects - Interior Photography, Bedroom, Windows, Bed

We have always been interested in architecture and design of all scales and, therefore, our architecture includes custom furniture, lighting, hardware and fittings to ensure a fully integrated experience. We believe that well-conceived lighting has a critical role to play in ensuring rich and tactile experiences in the spaces we design.

Ace Hotel Toronto / Shim-Sutcliffe Architects - Exterior Photography, Windows, Cityscape, Facade
Cre: ArchDaily